1. Для входа с помощью соцсетей выберите свой любимый сайт

Онлайн стройка: шале из бруса (начало - апрель 2016)

Тема в разделе "Строительство", создана пользователем Алексей, 18 апр 2016.

  1. Яна

    Яна Autotraveler Команда форума

    Регистрация:
    7 июн 2015
    Сообщения:
    4.827
    Симпатии:
    10.049
    Пол:
    Женский
    Адрес:
    Екб
    Думаю, лучше снова запланировать визит к нам.
    Есть очень грамотный человечек, он к нам приезжает и все делает, что нужно. Он несколько лет работал в компании, которая банчит видеонаблюдением, сейчас работает просто как частник - по нашей просьбе. Быстро, четко, цены разумные. По нашей рекомендации уже он устанавливал камеры в автосервисе Лены и Жени (Елена11111) - они довольны.
     
  2. Алексей

    Алексей Местный Команда форума

    Регистрация:
    7 июн 2015
    Сообщения:
    2.538
    Симпатии:
    5.643
    Пол:
    Мужской
    Род занятий:
    ххххх
    Адрес:
    Екатеринбур
    Камерам нужно 220 или аккумулятор. Нареканий нет, но молнии могут их вышибать, но там есть защита. IP, самые четкие камеры , когда пару лет назад отловили воришку, полиция была довольна качеством сьемки. Попробую более полную тему открыть про В(вид.)Н(наб.) и охран.контроль.(ОК)
     
  3. Яна

    Яна Autotraveler Команда форума

    Регистрация:
    7 июн 2015
    Сообщения:
    4.827
    Симпатии:
    10.049
    Пол:
    Женский
    Адрес:
    Екб
    3 мая.
    Леша сварил основу для ворот и калитки. Все это будет зашито доской.
    Зашит один пролет забора у ворот.
    Виды снаружи и с участка.

    20160503_181318.jpg

    20160503_181328.jpg 20160503_181343.jpg

    20160503_181357.jpg 20160503_181554.jpg
     
    Леля_Н, DimSanych, sergekb и 2 другим нравится это.
  4. Алексей

    Алексей Местный Команда форума

    Регистрация:
    7 июн 2015
    Сообщения:
    2.538
    Симпатии:
    5.643
    Пол:
    Мужской
    Род занятий:
    ххххх
    Адрес:
    Екатеринбур
    04.05. периметр участка закрыт

    DSC06508.JPG DSC06509.JPG DSC06510.JPG
     
    Леля_Н, Дядя Желудь и Свет. нравится это.
  5. Алексей

    Алексей Местный Команда форума

    Регистрация:
    7 июн 2015
    Сообщения:
    2.538
    Симпатии:
    5.643
    Пол:
    Мужской
    Род занятий:
    ххххх
    Адрес:
    Екатеринбур
    Камеры покрывают полностью вьездную зону , а их работу "контролирует - доп камера, которая не даст её незаметно "обесточить"

    DSC06508 ии.jpg
     
    Дядя Желудь и Свет. нравится это.
  6. Алексей

    Алексей Местный Команда форума

    Регистрация:
    7 июн 2015
    Сообщения:
    2.538
    Симпатии:
    5.643
    Пол:
    Мужской
    Род занятий:
    ххххх
    Адрес:
    Екатеринбур
    06.05.16. Привезли 1/2 всех блоков на дом, наварили стойки заборные, выровняли въездную зону.
     
    Свет. нравится это.
  7. Алексей

    Алексей Местный Команда форума

    Регистрация:
    7 июн 2015
    Сообщения:
    2.538
    Симпатии:
    5.643
    Пол:
    Мужской
    Род занятий:
    ххххх
    Адрес:
    Екатеринбур
    С 22.04. - 07.05. (половина месяца-юбилей)
    Вчера:
    1. Снесли зарегистрированное строение (сарай)!!! и возвели его на новом месте
    2. Два рейса за блоками ФБС
    3. Запоры на ворота и установку подпорной сьемной планки (необходима для автомат.ворот)

    DSC06511.JPG

    навели маломальский порядок и укрыли от дождя инструмент.

    DSC06512.JPG


    осталось перевезти около 15шт. ФБС

    DSC06515.JPG

    Разборка фундамента б\у сарайки.

    DSC06517.JPG DSC06518.JPG
     
    Свет. и Дядя Желудь нравится это.
  8. Свет.

    Свет. Moderator Команда форума

    Регистрация:
    18 июн 2015
    Сообщения:
    787
    Симпатии:
    1.755
    Пол:
    Женский
    Адрес:
    Казань
    Блоки на улице пока сложили? Там места так много?
     
  9. Алексей

    Алексей Местный Команда форума

    Регистрация:
    7 июн 2015
    Сообщения:
    2.538
    Симпатии:
    5.643
    Пол:
    Мужской
    Род занятий:
    ххххх
    Адрес:
    Екатеринбур
    При большой территории, примерно 17сотках, места для складирования материалов мало. Перед воротами почистили и прибрали территорию, для блоков.
    На подходе плиты перекрытия и кладочный блок, в размере 50м3.
     
    Дядя Желудь нравится это.
  10. Алексей

    Алексей Местный Команда форума

    Регистрация:
    7 июн 2015
    Сообщения:
    2.538
    Симпатии:
    5.643
    Пол:
    Мужской
    Род занятий:
    ххххх
    Адрес:
    Екатеринбур
    Сторожка начинаем
    DSC06544.JPG DSC06579.JPG DSC06583.JPG DSC06585.JPG
    Перекладина из трубы 25х50, сьемная, для поджима створок ворот

    DSC06586.JPG DSC06587.JPG

    для "отключения" затвора, когда работает механизм АТИ 5000 (автоматика)

    DSC06589.JPG DSC06590.JPG
     
    Леля_Н, sergekb и Дядя Желудь нравится это.
  11. Алексей

    Алексей Местный Команда форума

    Регистрация:
    7 июн 2015
    Сообщения:
    2.538
    Симпатии:
    5.643
    Пол:
    Мужской
    Род занятий:
    ххххх
    Адрес:
    Екатеринбур
    15.05. - 3 недели как осваиваем участок.

    Сторожка в растет

    DSC06632.JPG DSC06635.JPG DSC06636.JPG DSC06637.JPG DSC06638.JPG

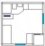
    это будет примерная планировка (для себя не разрисовываю)

    Безымянный.jpg

    Фундамент под дом 1 уровень

    DSC06633.JPG DSC06634.JPG
     
    Леля_Н, sergekb, Яна и 2 другим нравится это.
  12. Яна

    Яна Autotraveler Команда форума

    Регистрация:
    7 июн 2015
    Сообщения:
    4.827
    Симпатии:
    10.049
    Пол:
    Женский
    Адрес:
    Екб
    И от меня сегодняшние.
    Межвенцовый утеплитель - джутовая лента.
    Опалубка фундамента - реально крутая. Тут - не скальный грунт, как на нашем участке. Тут черт-е-что намешано: и скала, и песок, и глина.

    20160515_144918.jpg

    20160515_144943.jpg 20160515_145018.jpg

    20160515_145030.jpg 20160515_145110.jpg

    20160515_145125.jpg
     
    sergekb, Egor Korepanov и Свет. нравится это.
  13. Алексей

    Алексей Местный Команда форума

    Регистрация:
    7 июн 2015
    Сообщения:
    2.538
    Симпатии:
    5.643
    Пол:
    Мужской
    Род занятий:
    ххххх
    Адрес:
    Екатеринбур
    Сторожка, уже по лесам приходится прыгать. Делаем дальний угол из длинномера, затем коротыши можно и одному мастырить. На двоих 15.05.- 80м.п., 16.05 - 72м.п.м+ монтаж лесов.
    DSC06652.JPG DSC06659.JPG DSC06670.JPG DSC06646.JPG DSC06647.JPG
     
    Яна, DimSanych и Свет. нравится это.
  14. Алексей

    Алексей Местный Команда форума

    Регистрация:
    7 июн 2015
    Сообщения:
    2.538
    Симпатии:
    5.643
    Пол:
    Мужской
    Род занятий:
    ххххх
    Адрес:
    Екатеринбур
    Опалубка под дом 3 день


    DSC06648.JPG DSC06649.JPG DSC06651.JPG DSC06653.JPG DSC06654.JPG

    Соседки, пока нет забора забегают в гости


    DSC06655.JPG DSC06665.JPG DSC06667.JPG
     
    sergekb, DimSanych, Яна и ещё 1-му нравится это.
  15. Свет.

    Свет. Moderator Команда форума

    Регистрация:
    18 июн 2015
    Сообщения:
    787
    Симпатии:
    1.755
    Пол:
    Женский
    Адрес:
    Казань
    Внутри сторожки что предполагается разместить? (Удобства? Кухню?)
     
  16. Яна

    Яна Autotraveler Команда форума

    Регистрация:
    7 июн 2015
    Сообщения:
    4.827
    Симпатии:
    10.049
    Пол:
    Женский
    Адрес:
    Екб
    Все! Санузел с душем, кухню, ТВ, шкаф для вещей, кровать удобную...
     
    Свет. нравится это.
  17. Алексей

    Алексей Местный Команда форума

    Регистрация:
    7 июн 2015
    Сообщения:
    2.538
    Симпатии:
    5.643
    Пол:
    Мужской
    Род занятий:
    ххххх
    Адрес:
    Екатеринбур
    Света , там будет полный "фарш"!
     
  18. Алексей

    Алексей Местный Команда форума

    Регистрация:
    7 июн 2015
    Сообщения:
    2.538
    Симпатии:
    5.643
    Пол:
    Мужской
    Род занятий:
    ххххх
    Адрес:
    Екатеринбур
    Готовы к перекрытию


    DSC06672.JPG DSC06675.JPG DSC06677.JPG DSC06678.JPG

    По диагоналям опалубки разбег на 3см.

    DSC06673.JPG DSC06674.JPG DSC06676.JPG
     
    Леля_Н, DimSanych, Свет. и ещё 1-му нравится это.
  19. Яна

    Яна Autotraveler Команда форума

    Регистрация:
    7 июн 2015
    Сообщения:
    4.827
    Симпатии:
    10.049
    Пол:
    Женский
    Адрес:
    Екб
    Рабочие молодцы: затягивают опалубку пленкой, чтобы позже доски можно было повторно использовать.==-
     
  20. Алексей

    Алексей Местный Команда форума

    Регистрация:
    7 июн 2015
    Сообщения:
    2.538
    Симпатии:
    5.643
    Пол:
    Мужской
    Род занятий:
    ххххх
    Адрес:
    Екатеринбур
    DSC06680.JPG DSC06681.JPG DSC06683.JPG

    Если с опалубкой есть сложности, то сторожка вышла на перекрытие

    DSC06679.JPG DSC06682.JPG DSC06684.JPG
     
    DimSanych, Egor Korepanov, Яна и 3 другим нравится это.

Поделиться этой страницей